Amateurs de chaleur, de voyage et de VR, nous avons la collection qu’il vous faut! La collection de maison unifamiliale avec garage pouvant accueillir un VR est maintenant disponible sur notre site web.
Une habitation hybride pouvant accueillir un VR ou se transformer en aire habitable
L’idée est originellement pensée par la compagnie Laforest Habitation Durable après quoi nous avons développés différents modèles dans notre collection. Vous y trouverez plusieurs styles avec plusieurs aménagements possibles pour répondre à différents besoins.
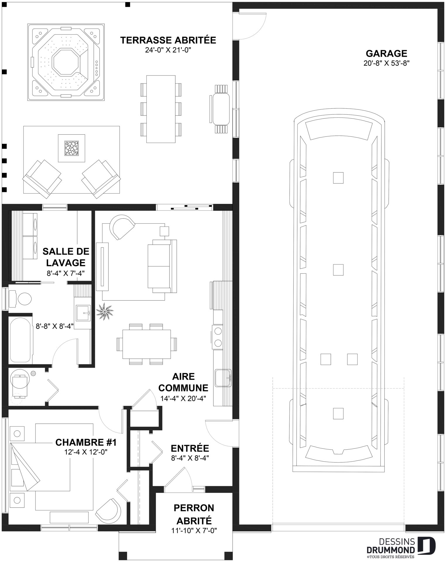
Nous avons créé ensemble, un concept révolutionnaire : une collection de maisons avec un concept hybride. Je vous explique : ce sont des plans de maisons qui ont l’espace pour entreposer votre VR et vous offrir la possibilité d’y vivre confortablement à l’année, même en hiver.
Les plans sont conçus pour s’adapter à vos besoins changeants. Vous pourrez planifier vos voyages en RV selon votre budget évolutif et les imprévus, sans contraintes météorologiques.
Le concept permet une transition flexible entre une habitation standard et un espace pour véhicules récréatifs (VR). Vous y trouverez un confort inégalé avec la possibilité d’accueillir famille et amis, et de se convertir facilement en fonction de vos besoins évolutifs. Profitez d’un confort inégalé avec une section habitable incluse et la possibilité d’organiser des réunions et des fêtes dans l’espace hybride.
De multiples possibilités : d’un garage à un aire de vie
Le concept de plans de maison Hybride vous permet de maximiser la valeur de votre investissement. Si vos besoins changent, notre habitation hybride peut se convertir en maison standard avec des coûts minimes, vous évitant ainsi la vente ou le déménagement. Vos proches pourront également profiter de cet espace lors de vos voyages, et il pourra éventuellement être converti en habitation standard ou chalet pour eux. Vous pourrez même louer cet espace pendant vos absences prolongées, offrant ainsi une polyvalence remarquable à votre investissement.
Imaginez une habitation qui peut se convertir selon vos besoins et évoluer avec vous. Grâce à notre concept unique, profitez de l’espace de la tranquillité sans compromis.
Auteur
Jennifer Larocque
Designer en charge de la conception depuis 2018 chez Dessins Drummond. Je suis une passionnée de l'architecture résidentielle et mon style est le Farmhouse soit un amalgame de rustique et de contemporain qui allie éléments minimalistes à la chaleur des matériaux naturels. Vous pouvez me suivre à travers mes articles de blogue et ma collection de plans de maison signée « JENN X DESSINSDRUMMOND ».






