Un plan de chalet rustique chaleureux, lumineux et parfaitement pensé
Le plan de chalet rustique Laurentides (#6129) incarne parfaitement l’équilibre entre charme naturel, fonctionnalité moderne et confort absolu. Avec sa façade foncée élégante et son style authentique, ce modèle attire immédiatement le regard et s’intègre harmonieusement en pleine nature.
De plus, ce modèle peut aussi devenir un excellent plan de chalet locatif, une option de plus en plus recherchée au Québec.
Que vous rêviez d’un chalet de ski ou d’une maison de campagne chaleureuse, ce modèle répond à ces deux envies. Grâce à sa conception intelligente, il offre une ambiance conviviale et enveloppante, idéale pour se ressourcer toute l’année.
👉 Vous hésitez encore entre différents styles? Découvrez aussi notre guide :
plan de maison sur mesure : comment ça fonctionne chez Dessins Drummond

Un intérieur lumineux avec plafond cathédral et aire ouverte
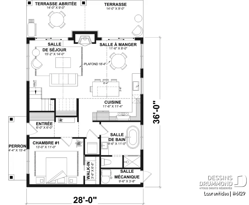
Dès l’entrée principale abritée, pratique en toute saison, vous découvrez un espace de vie accueillant et lumineux. Le rez-de-chaussée propose 1017 pi² parfaitement optimisés.
Les plafonds de 9’ apportent une belle sensation d’espace, tandis que le plafond cathédral au salon et à la cuisine crée un effet spectaculaire. Ainsi, la lumière naturelle circule abondamment, renforçant l’ambiance chaleureuse du chalet.
L’aire ouverte regroupe harmonieusement :
✔ Cuisine avec îlot central
✔ Salle à manger conviviale
✔ Salon avec foyer central
👉 Ce type d’aménagement est particulièrement recherché.
Consultez aussi :
combien coûte construire une maison au Québec en 2026
Une disposition fonctionnelle pensée pour le quotidien
Le plan de chalet Laurentides (#6129) a été conçu pour maximiser le confort au quotidien tout en créant une ambiance chaleureuse et conviviale. La chambre principale est idéalement située au rez-de-chaussée, à proximité d’une salle de bain complète, offrant à la fois intimité et accessibilité.
Plusieurs éléments pratiques ont été intégrés :
✔ Espace laveuse-sécheuse superposé discret
✔ Circulation fluide entre les pièces
✔ Accès facile pour occupants et invités
Plan du rez-de-chaussée
Le rez-de-chaussée propose une aire de vie bien équilibrée où fonctionnalité et confort se rencontrent. La cuisine, la salle à manger et le salon s’organisent dans un espace ouvert lumineux, favorisant une circulation naturelle et une utilisation optimale de chaque zone.

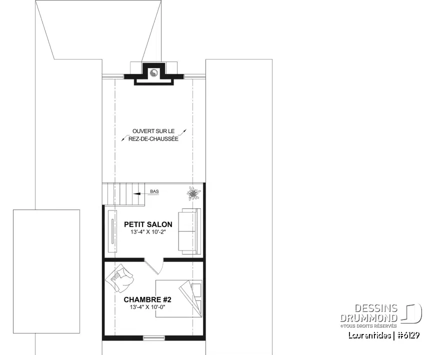
Mezzanine (étage)
À l’étage, la mezzanine de 268 pi² ajoute une dimension architecturale unique en surplombant l’aire de vie principale. Elle renforce la sensation d’espace et de luminosité, tout en offrant une grande polyvalence d’aménagement.
Elle comprend :
✔ Petit salon télé parfait pour relaxer
✔ Chambre secondaire idéale pour invités ou enfants

👉 Découvrir tous les détails du plan Laurentides (#6129)
À qui s’adresse ce plan de chalet rustique?
Ce plan de chalet rustique est idéal pour plusieurs profils :
✔ Couples ou petites familles recherchant un refuge nature
✔ Propriétaires de terrain en montagne ou en forêt
✔ Investisseurs souhaitant un chalet locatif haut de gamme
✔ Amateurs de plein air (ski, randonnée, détente)
👉 Si vous cherchez un modèle similaire, explorez notre collection complète de plans de chalet
Un plan de chalet rustique idéal pour un projet locatif
De plus en plus d’acheteurs recherchent un plan de chalet locatif rentable, et le modèle Laurentides (#6129) répond parfaitement à cette tendance.
Grâce à son style chaleureux, sa mezzanine et son aire ouverte conviviale, ce chalet propose une expérience immersive très recherchée par les voyageurs.
Ses atouts majeurs :
✔ Ambiance rustique et authentique
✔ Espaces ouverts favorisant la convivialité
✔ Mezzanine avec effet “wow”
✔ Foyer central très attractif
✔ Configuration idéale pour petits groupes
Rentabilité d’un chalet locatif : un investissement stratégique
Les chalets locatifs bien conçus se démarquent facilement. Les voyageurs recherchent des lieux uniques, chaleureux et photogéniques — exactement ce que propose ce modèle.
Un plan optimisé permet :
✔ D’augmenter l’attrait sur les plateformes
✔ De maximiser le taux d’occupation
✔ D’offrir une expérience client mémorable
✔ De viser un positionnement haut de gamme
👉 Découvrez aussi: plan de chalet locatif RIFUGIO (#1919)
👉 Explorer collection de plans de chalet
Revenus potentiels d’un chalet locatif : ce qu’il faut savoir
Investir dans un plan comme le Laurentides (#6129) peut être très intéressant, mais la rentabilité dépend de plusieurs facteurs :
✔ Emplacement (vue, accès, région touristique)
✔ Qualité du design et de l’aménagement
✔ Capacité d’accueil
✔ Mode de gestion
✔ Saisonnalité
Les chalets avec plafond cathédral, mezzanine et foyer se démarquent particulièrement.
👉 En résumé : un bon plan est la base d’un projet locatif performant.
Les gens qui consultent ce plan recherchent aussi
Les acheteurs intéressés par ce modèle consultent souvent :
✔ Plan de chalet avec mezzanine
✔ Plan de maison avec plafond cathédral
✔ Chalet moderne en bois
✔ Maison de campagne avec aire ouverte
👉 Consultez aussi : comment choisir le bon plan de maison
Fondation et options disponibles
La fondation incluse est une dalle flottante, idéale pour ce type de construction. Cependant, d’autres types de fondations sont disponibles selon votre terrain et vos besoins.
Un plan de chalet rustique personnalisable selon vos besoins
Bonne nouvelle : ce plan de chalet rustique peut être entièrement adapté grâce à notre service de modification. Ainsi, vous n’avez pas à repartir de zéro pour obtenir un chalet parfaitement aligné avec votre style de vie.
Par exemple, il est possible de :
✔ Ajuster la superficie
✔ Modifier la disposition intérieure
✔ Adapter le plan au terrain
✔ Ajouter un garage ou un rez-de-jardin
✔ Personnaliser le style
De plus, nos technologues en architecture vous accompagnent à chaque étape afin d’optimiser votre projet tout en respectant votre budget.
👉 Pour mieux comprendre le processus, consultez notre article :
plans de maison sur mesure, personnalisés ou prêts à construire
En résumé, vous profitez de la rapidité d’un modèle existant, tout en obtenant un résultat sur mesure.
FAQ – Plan de chalet rustique Laurentides (#6129)
Ce plan de chalet est-il adapté pour la location?
Oui, absolument. Son design, sa mezzanine et son aire ouverte en font un excellent choix pour la location touristique.
Peut-on modifier ce plan de chalet rustique?
Oui. Tous nos plans peuvent être adaptés selon vos besoins, votre terrain ou votre budget.
Ce chalet convient-il pour une résidence principale?
Oui. Grâce à sa disposition fonctionnelle et ses espaces bien pensés, il peut être utilisé à l’année.
Quelle superficie offre ce modèle?
Le rez-de-chaussée propose 1017 pi² et la mezzanine 268 pi².
D’autres fondations sont-elles possibles?
Oui, plusieurs options sont disponibles selon votre projet.

Un chalet pensé pour séduire… et performer
Le plan de chalet rustique Laurentides (#6129) combine esthétique, luminosité et fonctionnalité. Que ce soit pour un projet personnel ou locatif, il représente un choix stratégique et durable.
👉 Découvrez ce modèle et lancez votre projet dès aujourd’hui
++++++++++
Mention : Conception de ce chalet réalisée pour LOCATION AUTHENTIK. Ce chalet sera disponible à louer prochainement.
Auteur
Marie-France Roger
Fille des fondateurs de Dessins Drummond, j'avais 3 ans quand mes parents ont démarré l'entreprise! Depuis toujours je suis passionnée de l'architecture, et mon nouveau da-da c'est les médias sociaux! J'adore les voyages et le bon vin, les romans de Musso et HGTV! Maman de trois magnifiques enfants, et depuis 2002, co-propriétaire de Dessins Drummond avec mon meilleur ami et conjoint, Yves Carignan.



