Construire un plan de maison pas cher est aujourd’hui une priorité pour plusieurs acheteurs. Une maison économique permet de réduire les coûts sans compromettre le confort.
Avant de débuter, consultez notre guide sur le coût de construction d’une maison pour mieux planifier votre budget.
Les modèles 2180 et 2180-V1 répondent parfaitement à cette réalité. Ils proposent une solution simple, efficace et économique pour différents types de projets. De plus, leur style farmhouse chaleureux s’adapte autant à la ville qu’à la campagne. Ainsi, vous profitez d’un design intemporel, même avec un budget limité.
Ce type de plan de maison pas cher est particulièrement recherché pour les projets à petit budget.
Plan de maison plain-pied pas cher, compact et lumineux
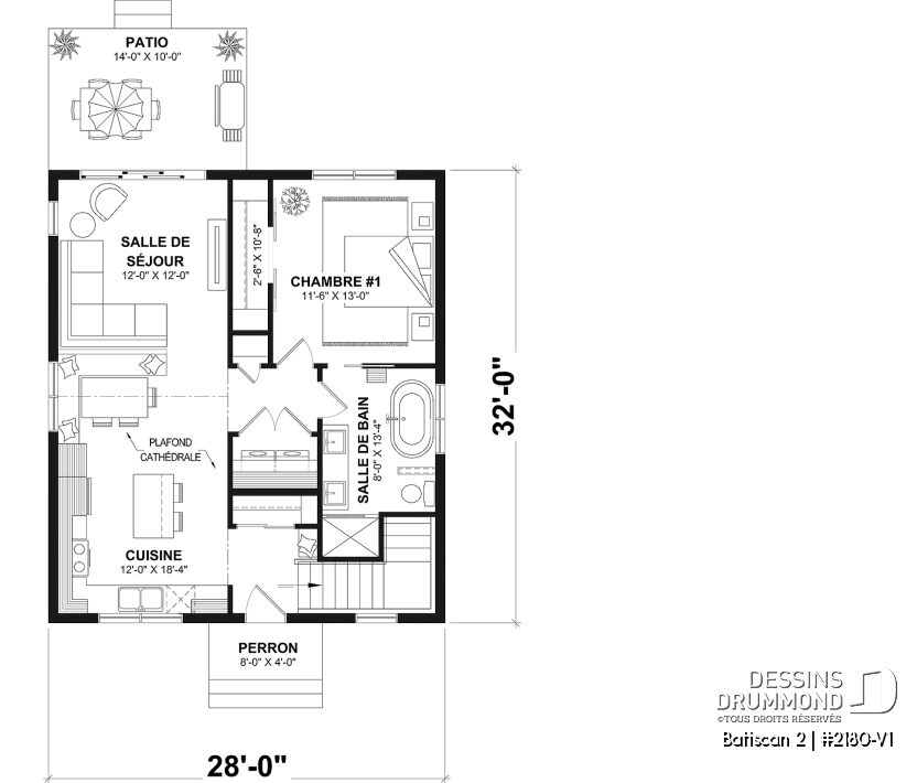
La maison compacte Batiscan (#2180) est un plan de maison plain-pied pas cher de 784 pi.ca. Il a été conçu pour maximiser chaque espace sans augmenter les coûts.

Ce plan de plancher illustre l’organisation optimisée d’une maison pas cher et fonctionnelle.
L’aire de vie ouverte regroupe la cuisine et le salon dans un même espace. Ainsi, vous bénéficiez d’un environnement convivial et fonctionnel. De plus, le plafond cathédral ajoute une belle sensation d’amplitude. Par conséquent, la maison paraît plus grande qu’elle ne l’est réellement.
La chambre principale offre un espace confortable et bien aménagé. La salle de bain intègre aussi un coin laveuse et sécheuse très pratique.
Enfin, la fondation sur dalle flottante réduit les coûts de construction. C’est donc une excellente option pour un projet de maison pas cher, petit budget.
Vous hésitez encore? Découvrez comment choisir le bon plan de maison selon vos besoins.
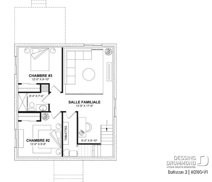
Maison pas cher évolutive avec option sous-sol aménagé

Pour ceux qui souhaitent plus d’espace, la version 2180-V1 est idéale. Cette maison évolutive propose une option avec sous-sol aménagé, très avantageuse.

Ce sous-sol peut inclure 2 chambres supplémentaires. Il comprend aussi une salle familiale, une salle de bain et du rangement. De plus, un coin bureau peut être aménagé selon vos besoins. Ainsi, cette maison économique devient parfaitement adaptée à une famille en croissance.

Cette approche vous permet de sélectionner dès le départ la version qui correspond le mieux à vos besoins et à votre budget. Vous pouvez ainsi choisir entre le modèle Batiscan (#2180) ou la version Batiscan 2 (#2180-V1) avec sous-sol aménagé optionnel.
Besoin d’aide pour structurer votre projet? Consultez nos solutions de financement maison au Québec.
À qui s’adresse ce plan de maison pas cher?
Ce type de maison convient à plusieurs profils d’acheteurs.
- Premiers acheteurs avec budget limité
- Projets de chalet économique en nature
- Couples souhaitant réduire leurs coûts
- Familles cherchant une maison évolutive
- Investisseurs souhaitant maximiser leur budget
De plus, ces plans peuvent être adaptés selon vos besoins spécifiques. Ainsi, vous obtenez une solution personnalisée à coût contrôlé.
Découvrez aussi nos services de modification de plan et de plan de maison sur mesure, offerts dans nos 30 bureaux à travers le Québec. Que ce soit pour ajuster un modèle existant ou concevoir un projet entièrement personnalisé, notre équipe vous accompagne à chaque étape.
Une maison pas cher idéale aussi comme chalet économique
Ces modèles conviennent parfaitement à un projet de chalet pas cher en nature. Grâce à leur format compact et à leur conception efficace, ils s’intègrent facilement sur différents types de terrains.
Apprenez aussi comment choisir le bon terrain pour maximiser le potentiel de votre projet.
De plus, leur style farmhouse chaleureux crée une ambiance accueillante, parfaite pour les séjours en famille ou entre amis. Le modèle Batiscan (#2180) sur dalle flottante est particulièrement intéressant pour un chalet simple et rapide à construire.
Pour ceux qui souhaitent plus d’espace, la version Batiscan 2 (#2180-V1) avec sous-sol aménagé permet d’accueillir davantage de personnes. Ainsi, vous pouvez adapter votre projet selon l’usage, que ce soit pour une résidence principale ou un chalet.
Pourquoi choisir une maison pas cher bien conçue?
Choisir une maison pas cher ne signifie pas faire des compromis. Au contraire, un plan bien pensé optimise chaque pied carré. De plus, la conception compacte réduit les coûts d’entretien. Ainsi, vous économisez à long terme.
Vous pouvez également parcourir nos plans de maison selon leur coût de construction pour trouver rapidement un modèle adapté à votre budget.
Par ailleurs, une maison simple est souvent plus rapide à construire. Cela permet de réduire les délais et les imprévus.
Informez-vous aussi sur le remboursement TPS/TVH pour réduire votre investissement global.
Les gens recherchent aussi
Voici quelques recherches similaires qui peuvent vous inspirer :
- plan de maison pas cher plain-pied
- mini plain-pied économique à construire
- plan de maison petit budget
- maison compacte avec sous-sol aménagé
- plan de maison 2 à 3 chambres pas cher
Voir aussi : plans de farmhouse Nordika et Strom 2 pour d’autres inspirations.
FAQ – Plan de maison pas cher 2180 et 2180-V1
Ces plans sont-ils vraiment économiques à construire?
Oui, ils sont conçus pour réduire les coûts grâce à leur compacité et leur efficacité. Le modèle 2180 sur dalle flottante est particulièrement avantageux pour un petit budget.
Quelle est la différence entre les versions 2180 et 2180-V1?
Le modèle 2180 est conçu sur dalle flottante, sans sous-sol. La version 2180-V1 propose une option avec sous-sol aménagé, offrant plus d’espace.
Un sous-sol est-il inclus dans ces plans?
Non, le modèle 2180 n’inclut pas de sous-sol puisqu’il est prévu sur dalle. Cependant, la version 2180-V1 offre un sous-sol aménagé en option.
Combien de chambres offrent ces plans?
Le modèle 2180 comprend une chambre principale. La version 2180-V1 peut offrir jusqu’à 3 chambres avec le sous-sol aménagé.
Est-ce un bon choix pour un premier achat?
Oui, ces plans sont idéaux pour un premier achat ou un petit budget. Ils permettent d’accéder à la propriété de façon simple et efficace.
Peut-on modifier ces plans?
Oui, nos technologues peuvent adapter les plans selon vos besoins. Vous pouvez ajuster les dimensions, l’aménagement ou certains éléments.
Une maison pas cher intelligente, évolutive et bien pensée
Ce plan de maison pas cher représente une solution idéale pour construire à moindre coût, sans compromis sur le confort. Les modèles 2180 et 2180-V1 proposent une approche à la fois efficace, flexible et accessible.
De plus, leur conception évolutive permet d’adapter la maison à votre réalité future. Ainsi, vous investissez dans une maison durable, bien pensée et adaptée à vos besoins.
En choisissant une maison pas cher intelligente et évolutive, vous maximisez chaque espace tout en maîtrisant votre budget.
Obtenez une soumission gratuite pour adapter ce plan à votre budget
Voir les plans Batiscan (#2180) et Batiscan 2 (#2180-V1) en détail
Parlez à un technologue près de chez vous



