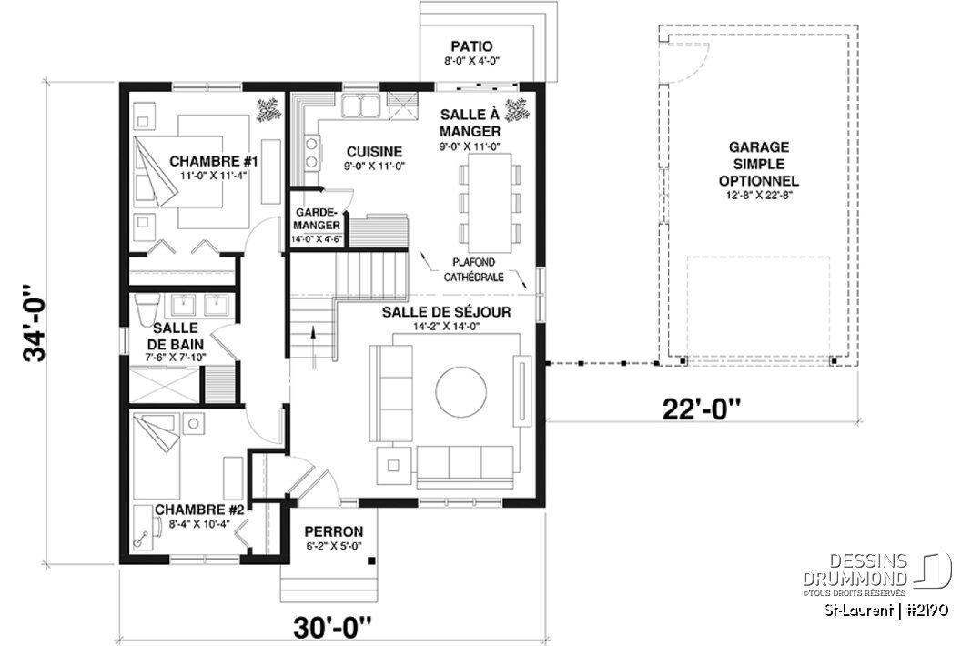
Le modèle St-Laurent (#2190) propose une solution idéale pour ceux qui recherchent un plan de maison plain-pied 2 chambres abordable, fonctionnel et chaleureux. Notamment, avec ses 948 pi² au rez-de-chaussée et un sous-sol de même superficie, ce plan optimise chaque espace dans une maison compacte tout en conservant un style champêtre moderne très apprécié.
De plus, ce modèle fait partie de notre collection de plans optimisés pour offrir le meilleur rapport qualité-prix sur le marché. Ainsi, pensé pour s’adapter à différents profils, ce modèle représente un excellent point de départ et offre un très bon rapport qualité-prix.
À qui s’adresse ce plan de maison de maison plain-pied 2 chambres ?
Ce plan de maison plain-pied est particulièrement intéressant pour :
- Petites familles à la recherche d’un espace fonctionnel et évolutif
- Premiers acheteurs souhaitant une maison abordable et bien conçue
- Retraités désirant réduire la superficie sans compromis sur le confort
- Propriétaires de terrains en nature ou en zone rurale
- Investisseurs (résidence principale avec potentiel d’aménagement au sous-sol)
Par ailleurs, si vous hésitez entre adapter un modèle ou créer un projet unique ? Comparez avec un plan sur mesure pour faire le bon choix.
Les principaux avantages du modèle St-Laurent (#2190)
- Construction abordable grâce à un volume de maison compact et efficace
- Garage détaché #2973 inclus, sans frais additionnel
- Plafond cathédrale dans l’aire de vie pour un effet wow immédiat
- Fenêtrage abondant pour une luminosité naturelle optimale
- Cuisine fonctionnelle avec garde-manger
- 2 chambres au rez-de-chaussée
- Sous-sol aménageable permettant d’ajouter 2 chambres supplémentaires
- Jusqu’à 4 chambres selon vos besoins
- 2 espaces de vie distincts avec la salle familiale au sous-sol
En résumé, ce modèle combine efficacité, confort et flexibilité.
👉 Découvrez le modèle de maison plain-pied St-Laurent en détail et visualisez les plans complets.

Un bonus inclus : plan de garage offert
Ce modèle inclut le plan de garage détaché Port Colonial (#2973), offert sans frais additionnel. Ce bonus représente une valeur ajoutée importante et vous offre une grande flexibilité, que vous choisissiez de construire le garage dès le départ ou de l’ajouter ultérieurement selon votre budget.

👉 Découvrez le plan de garage Port Colonial (#2973) pour voir tous les détails et les options disponibles.
Un espace de vie lumineux et convivial
Le cœur de la maison se trouve dans son aire ouverte, où la cuisine, la salle à manger et le salon sont réunis sous un plafond cathédrale. Ainsi, cette configuration crée une impression de grandeur, même avec une superficie compacte.

De plus, le fenêtrage abondant permet à la lumière naturelle d’entrer généreusement, rendant l’espace agréable au quotidien. Par conséquent, ce type de conception bien pensé contribue aussi à optimiser le budget global du projet. Consultez notre guide sur le coût de construction d’une maison pour bien planifier votre budget.
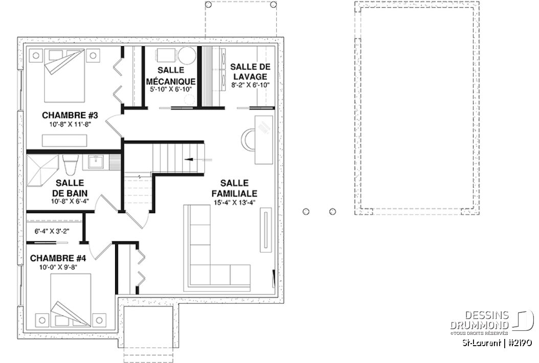
Un sous-sol évolutif selon vos besoins
Le sous-sol de 948 pi² offre une grande flexibilité. Au départ, vous pouvez le conserver non aménagé au départ, puis l’adapter selon votre budget et l’évolution de votre mode de vie.

Par la suite, en version aménagée (optionnelle), vous obtenez :
- 2 chambres supplémentaires
- Une salle familiale
- Une salle de lavage
- Une salle de douche
- Un coin bureau
- Une pièce mécanique
Ainsi, vous pouvez faire évoluer votre maison au fil du temps.
👉 Vous avez déjà une maison à optimiser ? Découvrez nos solutions de plans de rénovation pour optimiser et transformer votre espace actuel.
Un projet accessible et bien planifié
Grâce à sa conception simple et efficace, le modèle St-Laurent (#2190) permet de mieux contrôler les coûts de construction. De plus, certains acheteurs pourraient être admissibles à des programmes d’aide financière.
👉 Vérifiez votre admissibilité au remboursement de la TPS/TVH pour réduire vos coûts.
Ceux qui aiment ce plan recherchent aussi :
- Plans de maison abordables
- Maisons champêtres économiques
- Plans de maison compacts
- Maisons avec sous-sol aménageable
- Plans de chalet abordable
FAQ – Plan de maison St-Laurent (#2190)
Quelle est la superficie du modèle St-Laurent (#2190) ?
Le modèle St-Laurent offre 948 pi² au rez-de-chaussée ainsi qu’un sous-sol de superficie équivalente. Cette configuration compacte permet d’optimiser l’espace et les coûts de construction.
Combien de chambres propose ce plan de maison ?
Ce plan comprend 2 chambres au rez-de-chaussée. Avec le sous-sol aménagé (optionnel), vous pouvez ajouter 2 chambres supplémentaires, pour un total de 4 chambres.
Le sous-sol est-il inclus et peut-il être aménagé ?
Oui, le sous-sol est inclus et peut être laissé non fini. De plus, une version aménagée est offerte en option, permettant d’ajouter des pièces selon vos besoins et votre budget.
Le garage est-il inclus dans ce plan ?
Oui, un plan de garage détaché (#2973) est inclus sans frais additionnel. Il peut être construit dès le départ ou ultérieurement.
Ce modèle est-il adapté pour un petit budget ?
Oui, ce plan a été conçu pour offrir une construction abordable. Sa forme simple et son aménagement efficace contribuent à réduire les coûts globaux du projet.
Vous souhaitez adapter ce plan à votre terrain ou à vos besoins spécifiques ?
Nos technologues en architecture, présents dans plus de 30 bureaux à travers le Québec, peuvent modifier ce modèle pour créer une version parfaitement adaptée à votre projet.
Conclusion
En conclusion, compact, lumineux et accessible, le plan de maison plain-pied 2 chambres St-Laurent (#2190) est un excellent choix pour bâtir un projet réfléchi, évolutif et adapté à votre budget.
👉 Consultez la fiche complète du plan St-Laurent (#2190) et découvrez toutes les options pour concrétiser votre projet dès aujourd’hui.



