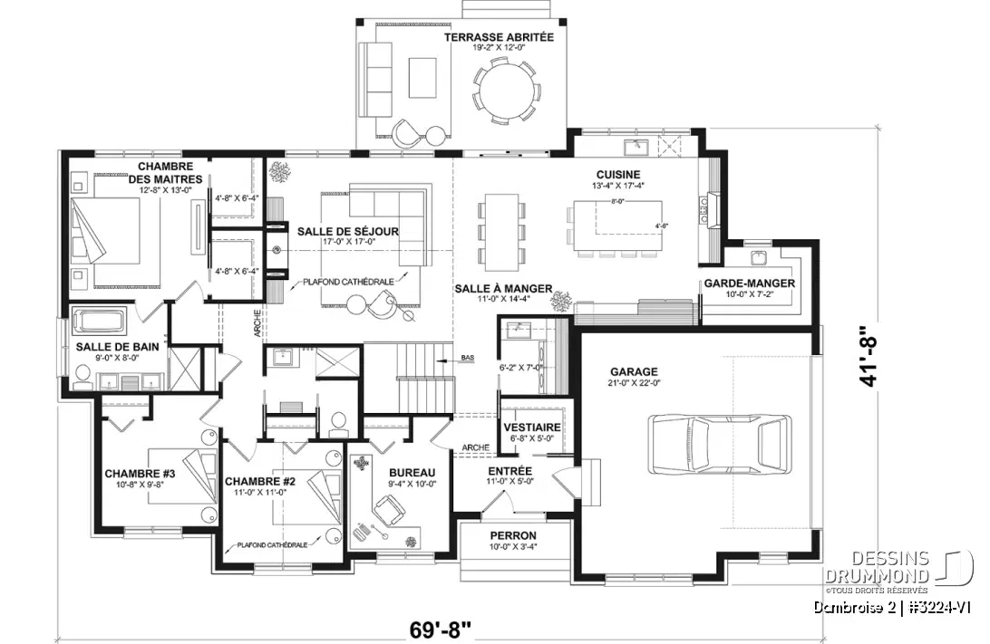
Le Dambroise 2 (#3224-V1) est un plan de maison plain-pied avec garage double qui séduit par son style moderne rustique et sa luminosité exceptionnelle. Avec 2 016 pi² au rez-de-chaussée et un sous-sol de même superficie, ce modèle offre une grande flexibilité.
Avant de choisir un plan de maison, il est essentiel de bien analyser votre terrain et vos besoins afin de faire un choix éclairé.
👉 Découvrez aussi comment choisir son terrain afin d’optimiser votre projet dès le départ.
👉 De plus, prenez le temps de voir comment choisir le bon plan de maison pour faire un choix éclairé.
Plan de maison plain-pied avec garage double et luminosité exceptionnelle
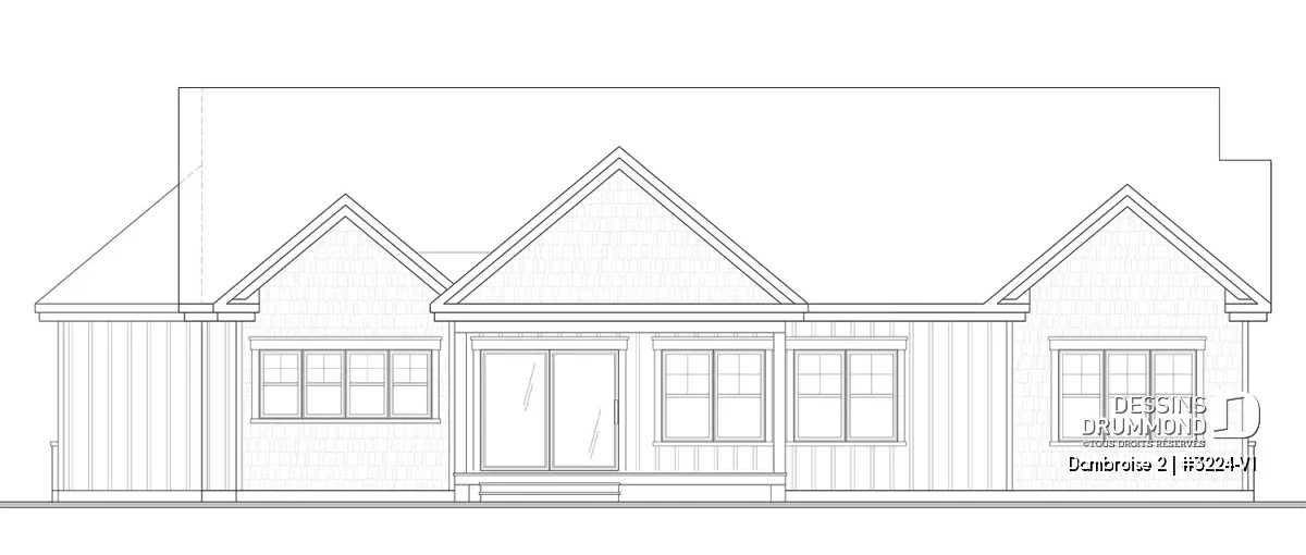
L’un des principaux atouts de ce plan de maison plain-pied avec garage double est sa luminosité remarquable. Grâce à une fenestration abondante à l’arrière, ce plan de maison profite d’une lumière naturelle exceptionnelle. Ainsi, la cuisine, la salle à manger et le salon deviennent des espaces chaleureux et accueillants. De plus, le plafond cathédral au salon accentue la sensation de grandeur. Les plafonds de 9 pieds partout au rez-de-chaussée ajoutent également confort et fluidité.
Une cuisine conviviale au cœur de la maison
La cuisine de ce plan de maison plain-pied avec garage double est conçue pour rassembler. Son grand îlot pouvant accueillir jusqu’à 6 personnes devient un espace central au quotidien. Par ailleurs, le garde-manger de type arrière-cuisine offre un maximum de rangement et de fonctionnalité. Ainsi, vous profitez d’un espace toujours organisé et agréable à utiliser.

Des espaces pensés pour la vraie vie
Cette maison plain-pied avec garage double propose une organisation intérieure qui simplifie le quotidien. Notamment, l’entrée principale et celle du garage donnent accès à un vaste vestiaire. De plus, un bureau fermé offre un espace calme pour le télétravail. La salle de lavage au rez-de-chaussée ajoute également un confort essentiel. Enfin, les meubles intégrés au salon optimisent le rangement et le style.
Une suite principale confortable et bien conçue
La chambre principale, située au rez-de-chaussée, offre un espace intime et fonctionnel. Elle comprend deux walk-in distincts pour une organisation optimale. Sa salle de bain privée propose un bain autoportant, une douche séparée et un double lavabo. Deux chambres secondaires complètent ce niveau et partagent une salle de bain.
👉 Découvrez nos plans de maison avec suite parentale au rez-de-chaussée et trouvez l’aménagement idéal pour votre quotidien.
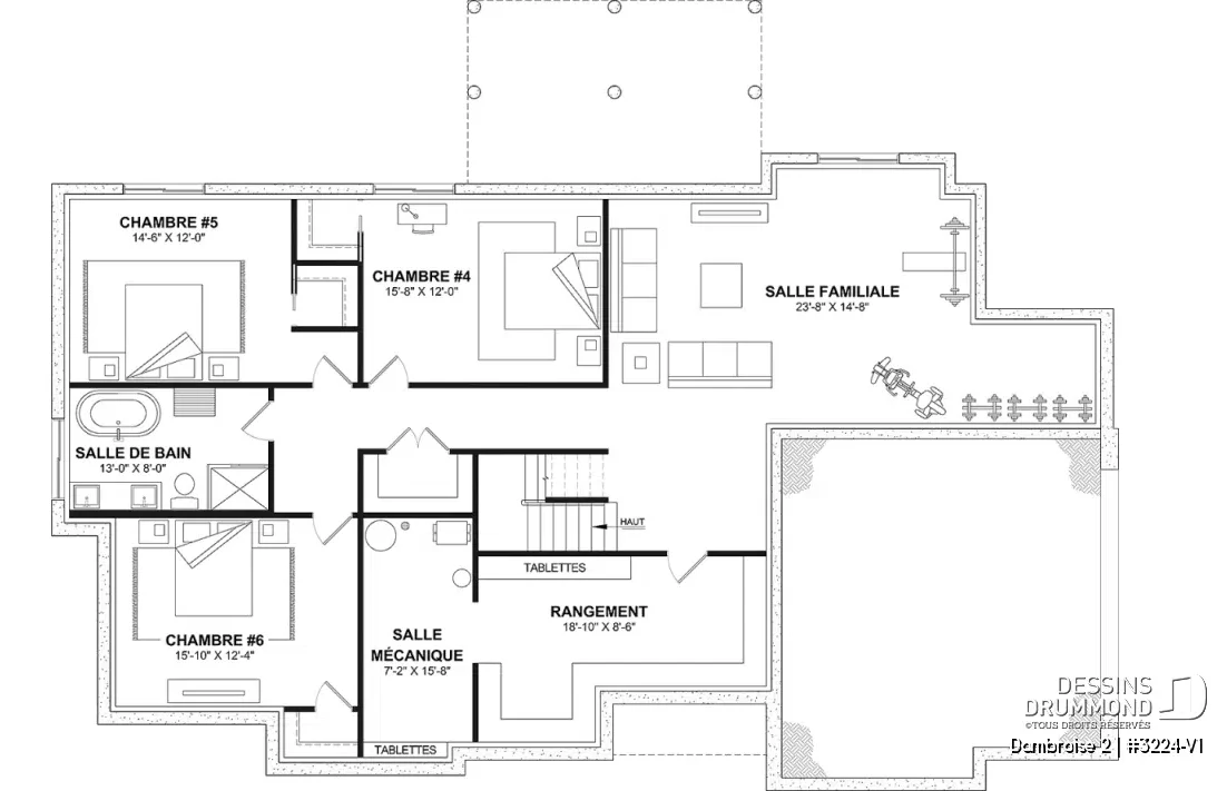
Un sous-sol évolutif selon vos besoins
Le sous-sol non aménagé de ce plan de maison plain-pied offre 2 016 pi² supplémentaires. Ainsi, ce modèle de maison avec garage double et sous-sol s’adapte facilement à votre mode de vie. La version aménagée optionnelle permet d’ajouter jusqu’à 3 chambres supplémentaires. Vous pouvez ainsi atteindre un total de 6 chambres dans la maison. De plus, vous bénéficiez d’une salle familiale, d’un espace gym et d’une salle de bain complète.
👉 Voir tous les détails du plan Dambroise 2 (#3224-V1)

👉 Découvrez ce plan de maison plain-pied avec garage double et voyez les plans détaillés dès maintenant.
Une maison adaptée à votre terrain
Le garage double latéral offre une grande flexibilité d’implantation sur différents types de terrains. Cependant, il peut aussi être converti en garage en façade selon vos préférences. La terrasse arrière de 19’ x 12’ prolonge naturellement les espaces de vie vers l’extérieur.

Un plan de maison personnalisable selon vos besoins
Même si ce plan est très complet, il peut être entièrement adapté à votre réalité. Chez Dessins Drummond, tous les plans peuvent être modifiés selon vos besoins.
👉 Par exemple, vous pouvez ajuster les pièces, modifier les dimensions ou adapter la façade à vos goûts et à votre mode de vie. Obtenez votre estimation gratuite pour modifier le plan Dambroise 2 et l’adapter parfaitement à votre projet.
De plus, si vous hésitez entre un modèle existant et une conception entièrement personnalisée, découvrez les différences entre un plan de maison sur mesure ou préconçu afin de faire le bon choix pour votre projet. Vous pourrez ainsi mieux orienter vos décisions selon vos besoins et votre budget.
Grâce à notre réseau de 30 bureaux régionaux au Québec, vous bénéficiez ensuite d’un accompagnement local et humain pour concrétiser votre projet. Ainsi, vous êtes bien encadré, du début jusqu’à la réalisation de votre maison.
Styles de maisons similaires à considérer
Si vous aimez ce plan de maison plain-pied avec double garage, d’autres styles pourraient aussi vous intéresser.
- Maisons farmhouse modernes, très populaires pour leur cachet chaleureux
- Maisons scandinaves, reconnues pour leur luminosité et leur simplicité
- Maisons contemporaines, axées sur les volumes et les grandes fenêtres
- Plans de maison plain-pied, toujours recherchés pour leur accessibilité
Cependant, le meilleur choix dépend toujours de votre terrain, de votre budget et de votre mode de vie.
Budget et planification : des étapes essentielles
Avant de construire, il est important de bien planifier votre budget.
👉 Consultez notre guide pour savoir combien coûte construire une maison en 2026.
De plus, certains acheteurs peuvent bénéficier d’un programme avantageux.
👉 Informez-vous sur le remboursement de la TPS / TVH.
Par ailleurs, dans certains cas, rénover peut être une option intéressante.
👉 Découvrez comment un plan de rénovation de maison peut répondre à vos besoins.
À qui s’adresse ce plan de maison?
Ce modèle de maison plain-pied moderne avec garage double est idéal pour :
✔️ Les familles qui recherchent une maison lumineuse et fonctionnelle
✔️ Les acheteurs souhaitant jusqu’à 6 chambres
✔️ Les amateurs de style moderne rustique
✔️ Les télétravailleurs ayant besoin d’un bureau fermé
✔️ Les projets en banlieue ou en milieu naturel
✅ FAQ – Plan de maison plain-pied avec garage double
Combien de chambres peut offrir ce plan?
Jusqu’à 6 chambres avec la version aménagée du sous-sol.
Peut-on modifier ce plan de maison?
Oui, ce plan peut être entièrement personnalisé selon vos besoins.
Le garage peut-il être repositionné?
Oui, le garage latéral peut être converti en garage en façade.
Ce plan convient-il pour tous les terrains?
Il s’adapte à plusieurs terrains, mais une analyse préalable est recommandée.
Ce plan est-il adapté pour une famille?
Oui, il offre des espaces fonctionnels, évolutifs et bien pensés.
Pourquoi choisir ce plan de maison plain-pied avec garage double?
Le Dambroise 2 (#3224-V1) combine design, luminosité et grande flexibilité. De plus, il s’adapte facilement à votre mode de vie actuel et futur. Ainsi, il représente un excellent choix pour un projet durable et bien réfléchi.
Cependant, chaque projet est unique. C’est pourquoi ce plan de maison plain-pied avec garage double peut être entièrement adapté à votre réalité. Que ce soit pour ajuster les dimensions, modifier l’aménagement intérieur ou adapter la façade, notre équipe peut personnaliser le modèle Dambroise 2 (#3224-V1) selon vos besoins.
Grâce à notre réseau de 30 bureaux régionaux au Québec, vous bénéficiez d’un accompagnement humain, local et structuré à chaque étape de votre projet. Vous êtes ainsi bien guidé, de la première idée jusqu’à la réalisation de votre maison.
👉 Découvrez le plan Dambroise 2 (#3224-V1) et demandez votre estimation gratuite dès aujourd’hui.



