Choisir une maison plain-pied lumineuse est aujourd’hui une priorité pour plusieurs familles. On recherche un espace simple, fonctionnel et lumineux, adapté à la réalité d’aujourd’hui. Choisir le bon plan de maison est une étape essentielle pour assurer le succès de votre projet. Le modèle Chatelain (#3162) répond parfaitement à ces attentes. Il propose un aménagement intelligent, une grande fenestration et une suite principale avec salle de bain privée au rez-de-chaussée.

Avec ses 1 370 pi² sur un seul niveau, cette maison plain-pied offre une circulation fluide et sans contrainte. De plus, elle comprend un sous-sol aménagé optionnel, permettant d’adapter la maison selon l’évolution de vos besoins.

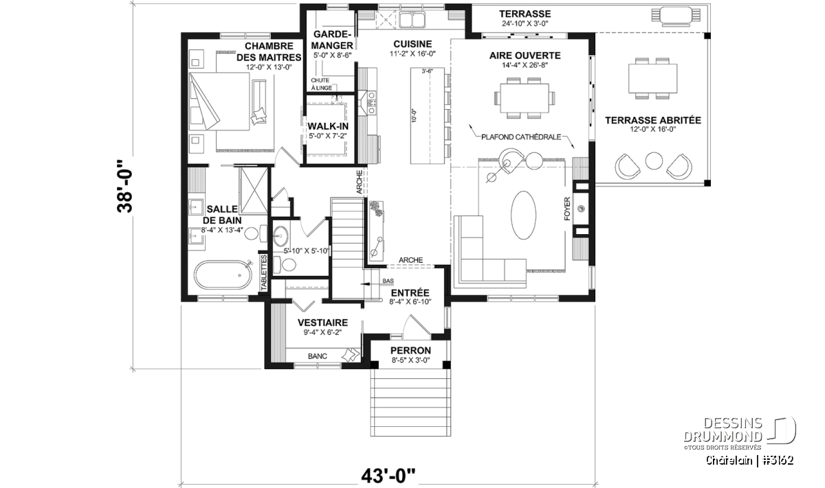
Ce plan du rez-de-chaussée permet de mieux comprendre l’organisation fonctionnelle et fluide de cette maison plain-pied lumineuse.

Plan de maison plain-pied avec aire ouverte, suite principale et terrasse – modèle Chatelain (#3162)
Plan du rez-de-chaussée avec aire ouverte, suite principale et terrasse Plan Chatelain (#3162) – Dessins Drummond

Une maison plain-pied lumineuse et conviviale

Dès l’entrée, cette maison plain-pied séduit par son organisation fonctionnelle. Le vestibule avec vestiaire et banc intégré facilite le quotidien, surtout en saison hivernale. Ensuite, l’aire de vie ouverte met en valeur une lumière naturelle abondante. Grâce à la grande fenestration, chaque espace profite d’une clarté agréable tout au long de la journée. Ainsi, l’ambiance demeure chaleureuse et accueillante.

L’aire de vie ouverte met en valeur une luminosité exceptionnelle et une circulation fluide entre les espaces.

Maison plain-pied lumineuse avec aire ouverte, plafond cathédrale et grande fenestration – salon et cuisine du modèle Chatelain (#3162)
Aire de vie ouverte baignée de lumière avec plafond cathédrale et cuisine conviviale | Plan Chatelain (#3162) | Dessins Drummond

Le salon, avec son foyer central et ses meubles encastrés, devient un lieu de rassemblement naturel. Par ailleurs, la cuisine avec îlot central et garde-manger s’intègre parfaitement à l’ensemble.

La cuisine de cette maison plain-pied lumineuse, avec son grand îlot central, devient un espace clé du quotidien.

Cuisine lumineuse dans une maison plain-pied avec grand îlot central et grande fenestration – modèle Chatelain (#3162)
Cuisine conviviale avec grand îlot central et abondante lumière naturelle
Plan Chatelain (#3162) – Dessins Drummond

La salle à manger bénéficie d’une abondante lumière naturelle et d’un accès direct à l’extérieur.

Salle à manger lumineuse dans une maison plain-pied avec grande fenestration et plafond cathédrale – modèle Chatelain (#3162)
Salle à manger baignée de lumière naturelle avec accès direct à la terrasse | Plan Chatelain (#3162) | Dessins Drummond

Le salon propose un espace chaleureux et accueillant, idéal pour les moments de détente en famille.

Salon de maison plain-pied lumineuse avec foyer en pierre, plafond cathédrale et grande fenestration – modèle Chatelain (#3162)
Salon chaleureux avec foyer en pierre et plafond cathédrale baigné de lumière naturelle | Plan Chatelain (#3162) | Dessins Drummond

👉 Ce type d’aménagement est idéal si vous envisagez un plan de maison sur mesure adapté à votre mode de vie.

Une suite principale avec salle de bain privée au rez-de-chaussée

L’un des principaux avantages de cette maison plain-pied lumineuse est sa suite principale située au rez-de-chaussée. Cette configuration est très recherchée pour son confort et sa praticité.

👉 Vous recherchez un plan avec chambre des parents au rez-de-chaussée? Découvrez notre collection!

En effet, elle permet d’éviter les escaliers tout en augmentant l’intimité. De plus, la chambre principale propose un espace calme et bien dimensionné. Elle est également accompagnée d’un walk-in ainsi que d’une salle de bain privée. Celle-ci comprend notamment un bain, une douche indépendante et un lavabo double. Ainsi, vous bénéficiez d’un espace complet et fonctionnel, parfaitement conçu pour le confort quotidien.

La salle de bain privée de la suite principale offre un espace élégant et apaisant, pensé pour le confort quotidien.

Salle de bain privée moderne dans une maison plain-pied lumineuse avec bain autoportant, douche vitrée et grande fenestration – modèle Chatelain (#3162)
Salle de bain privée élégante avec bain autoportant et douche vitrée baignée de lumière naturelle | Plan Chatelain (#3162) | Dessins Drummond

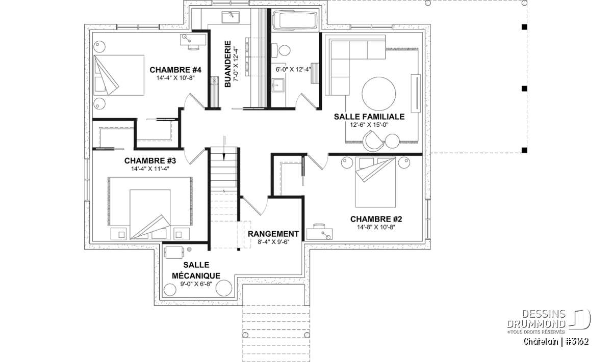
Un sous-sol aménagé optionnel pour évoluer dans le temps

Le modèle Chatelain offre également un sous-sol aménagé optionnel de 1 370 pi². Cet espace peut être aménagé selon vos priorités.

Par exemple, vous pouvez y intégrer :

  • Trois chambres supplémentaires
  • Une salle familiale
  • Une salle de bain
  • Une salle de lavage avec chute à linge
  • Des espaces de rangement

Le sous-sol aménagé optionnel offre plusieurs possibilités d’aménagement selon les besoins de votre famille.

Plan de sous-sol aménagé d’une maison plain-pied avec 3 chambres, salle familiale et rangement – modèle Chatelain (#3162)
Sous-sol aménagé optionnel avec 3 chambres, salle familiale, salle de bain, salle de lavage et espaces de rangement | Plan Chatelain (#3162) | Dessins Drummond

Ainsi, cette maison plain-pied lumineuse s’adapte facilement aux familles en croissance et aux besoins évolutifs. Elle permet aussi de répartir les investissements dans le temps.

La terrasse couverte prolonge les espaces de vie et permet de profiter pleinement de l’extérieur.

Maison plain-pied lumineuse de style champêtre avec terrasse couverte et grande fenestration – vue arrière du modèle Chatelain (#3162)
Terrasse couverte et façade arrière chaleureuse d’une maison plain-pied lumineuse | Plan Chatelain (#3162) | Dessins Drummond

👉 Vous rénovez plutôt une maison existante? Consultez notre guide sur le plan de rénovation maison.

À qui s’adresse cette maison plain-pied?

Le plan Chatelain (#3162) est idéal pour :

  • Les familles recherchant une maison plain-pied lumineuse
  • Les acheteurs souhaitant une suite principale au rez-de-chaussée
  • Les projets nécessitant un espace évolutif
  • Les personnes voulant maximiser la lumière naturelle

De plus, ce type de plan de maison plain-pied convient parfaitement aux styles de vie modernes et flexibles.

👉 Pour bien planifier votre budget, consultez notre guide sur le coût de construction maison Québec 2026.

Les gens qui aiment cette maison recherchent aussi :

✔ Plans de maison plain-pied avec 2 chambres
✔ Plans de maison plain-pied avec garage
✔ Plans de maison champêtre rustique
✔ Plans de maison lumineuse avec grande fenestration
✔ Plans de maison avec suite principale au rez-de-chaussée

Un choix stratégique pour votre budget

Construire une maison plain-pied lumineuse représente un investissement important. Cependant, certaines décisions permettent d’optimiser les coûts.

Par exemple, le sous-sol aménagé optionnel permet de construire progressivement. Vous pouvez ainsi mieux contrôler votre budget global.

👉 Vérifiez aussi votre admissibilité au remboursement TPS TVH première habitation Canada.

FAQ – Maison plain-pied Chatelain (#3162)

Pourquoi choisir une maison plain-pied?
Une maison plain-pied offre une circulation simple, sans escalier, idéale pour tous les types de familles.

Le sous-sol est-il obligatoire à aménager?
Non. Le sous-sol aménagé est optionnel, ce qui permet plus de flexibilité financière.

Quels sont les avantages d’une suite principale au rez-de-chaussée?
Elle offre plus de confort, d’intimité et facilite le quotidien.

Pourquoi privilégier une maison lumineuse?
Une maison lumineuse améliore le bien-être, réduit l’éclairage artificiel et augmente la valeur perçue.

Passez à l’action pour votre projet

Explorez les détails du plan Chatelain (#3162) et découvrez plusieurs photos

Faites modifier ce plan par l’un de nos 30 bureaux de technologues en architecture

Et si vous aviez un plan entièrement conçu pour votre famille? Découvrez notre service de plan sur mesure

En résumé, le modèle Chatelain (#3162) est une maison plain-pied lumineuse avec suite parentale et sous-sol aménagé optionnel, idéale pour un mode de vie confortable, flexible et durable.