Le plan de maison Cedar Grove 2 (#3161-V1) a été conçu pour répondre aux besoins des familles dont les adolescents souhaitent leur propre espace. Tandis que les parents profitent d’un rez-de-chaussée lumineux et élégant, le sous-sol devient un véritable lieu de vie pour les jeunes.
Inspirée du style farmhouse moderne, cette maison offre une ambiance chaleureuse, tout en proposant une organisation intérieure réfléchie.
✨ Découvrez les détails et visionnez la vidéo du plan Cedar Grove 2 (#3161-V1) directement sur notre site.

Pourquoi choisir le plan Cedar Grove 2 (#3161-V1) pour votre construction au Québec
Ce modèle se distingue par plusieurs caractéristiques appréciées par les familles québécoises :
-
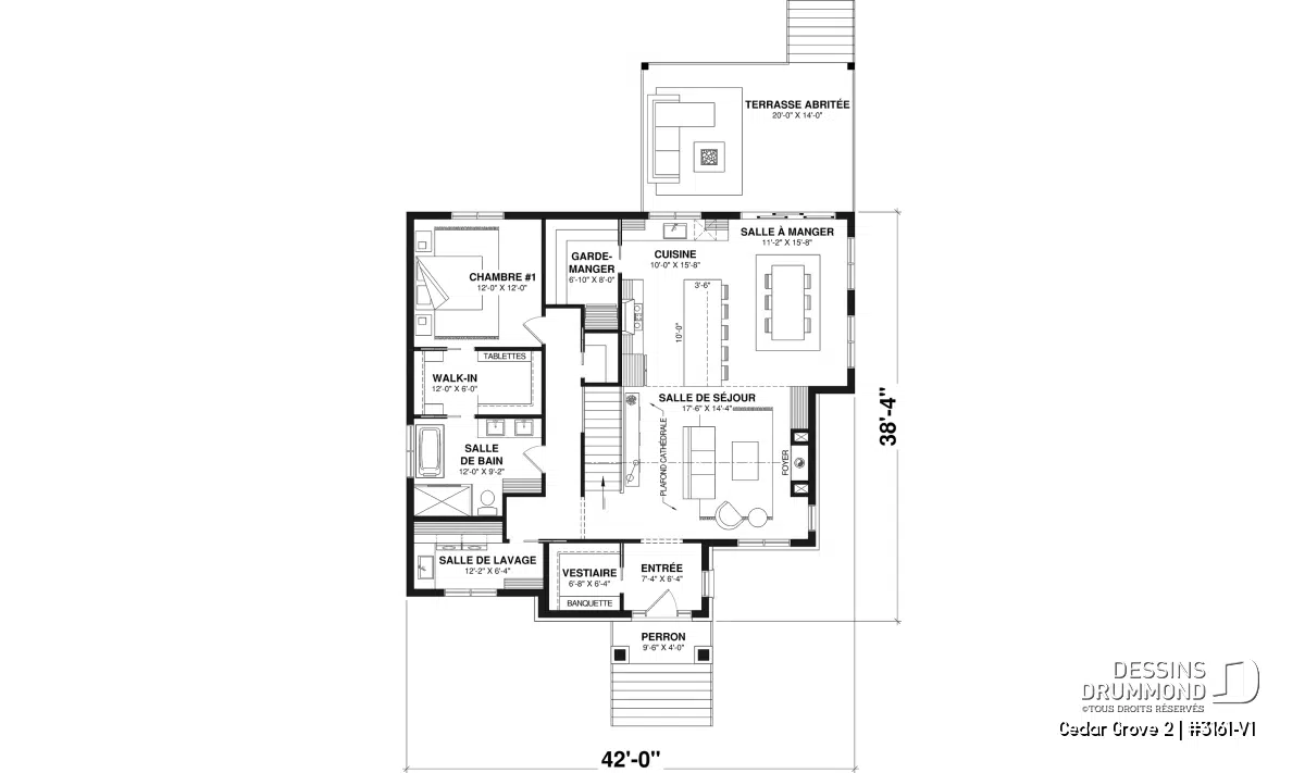
Rez-de-chaussée ouvert avec plafonds de 9 pi et plafond cathédral au séjour
-
Chambre principale au rez-de-chaussée avec walk-in et accès direct à la salle de bain
-
Perron avant abrité et grande terrasse arrière couverte
-
Cuisine avec îlot central et garde-manger
-
Vestiaire spacieux avec banquette intégrée
-
Salle de lavage pratique au rez-de-chaussée
Cet agencement crée un environnement confortable, parfait pour le quotidien comme pour recevoir.



Un intérieur lumineux et convivial
Dès l’entrée, Cedar Grove 2 impressionne par sa circulation fluide et ses espaces bien définis. La salle de séjour avec foyer devient le cœur de la maison. De plus, la cuisine et la salle à manger ouvertes favorisent les moments en famille.
La chambre principale, située au rez-de-chaussée, assure calme et intimité. Plusieurs rangements intégrés simplifient aussi l’organisation.
C’est un excellent exemple de plan de maison farmhouse moderne pensé pour la vraie vie.

Disposition fluide avec aire ouverte, suite principale au RDC et terrasse couverte, idéale pour la vie familiale moderne.
Un sous-sol pensé pour les adolescents
L’option de sous-sol aménagé transforme l’expérience familiale. On y retrouve :
-
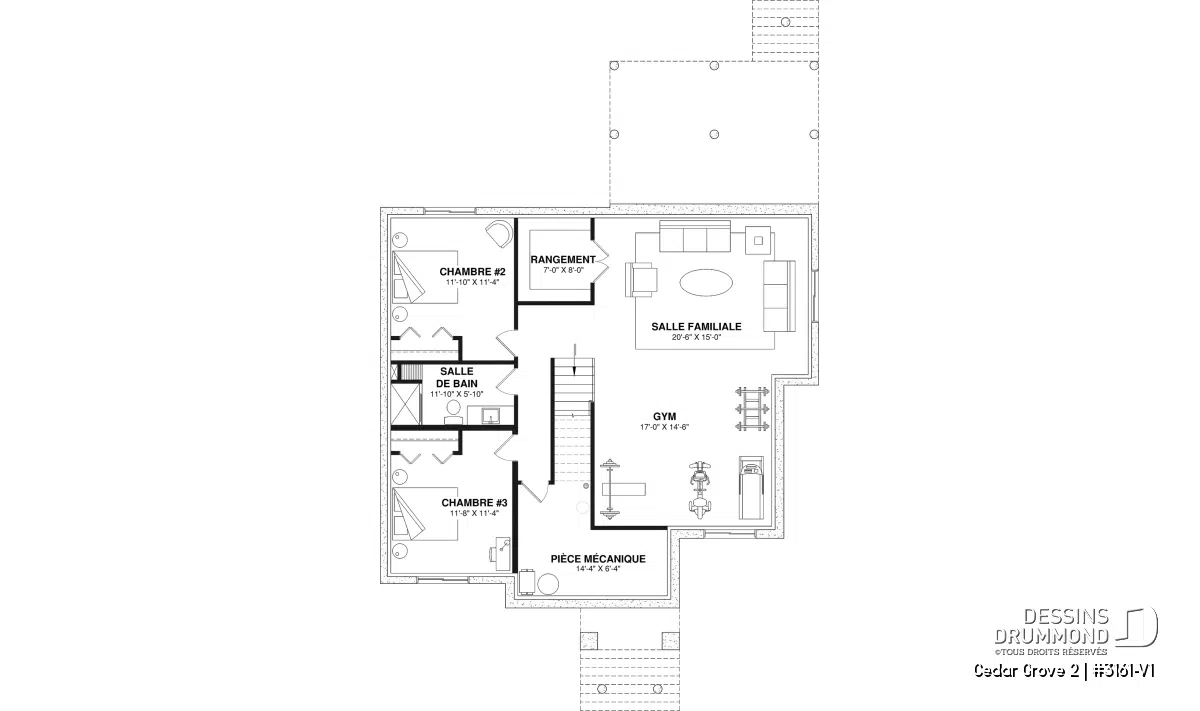
Deux chambres supplémentaires
-
Une salle familiale dédiée
-
Un coin gym polyvalent
-
Une salle de bain complète
Cette configuration crée un espace semi-indépendant idéal pour les jeunes. Voilà pourquoi Cedar Grove 2 est un plan de maison pour famille avec adolescents si apprécié.

Deux chambres pour ados, salle familiale, gym et salle de bain — un espace polyvalent pensé pour l’autonomie et le confort.
Adapté à vos besoins et à votre terrain
Le sous-sol peut être livré non fini ou entièrement aménagé, selon votre projet. De plus, l’organisation intérieure peut être personnalisée. Que vous construisiez en banlieue ou à la campagne, ce plan de maison avec sous-sol aménagé s’adapte facilement à différents terrains.
✅ Foire aux questions – Plan de maison Cedar Grove 2 (#3161-V1)
Ce plan convient-il aux terrains québécois typiques ?
Oui — il fonctionne très bien autant sur des terrains urbains que ruraux.
Combien de chambres peut-on aménager ?
Jusqu’à 3 chambres avec le sous-sol aménagé.
Les parents peuvent-ils vivre au rez-de-chaussée ?
Oui — la chambre principale est prévue au rez-de-chaussée.
Le sous-sol est-il personnalisable ?
Absolument — nos bureaux peuvent adapter l’aménagement selon votre réalité familiale.
📐 Demandez une modification personnalisée
🏡 Et si Cedar Grove 2 devenait votre prochain chez-vous?
Le plan de maison Cedar Grove 2 (#3161-V1) est une superbe option pour les familles avec adolescents qui recherchent confort, lumière et espaces bien définis. Grâce à sa suite principale au rez-de-chaussée et à son sous-sol dédié aux jeunes, ce modèle crée un équilibre naturel entre vie parentale et autonomie des enfants.
Conçu pour évoluer avec votre famille, Cedar Grove 2 représente un excellent choix si vous souhaitez une maison chaleureuse, pratique et résolument actuelle.
📍 Contactez votre bureau régional Dessins Drummond
🔨 Vous rénovez plutôt? Découvrez notre service de plans rénovation.
👇 Vous préférez un plain-pied avec garage? Découvrez HUBERT 3 👇
Plan HUBERT 3 (#3142-V2) avec Foyer STÛV : plain-pied avec garage double





