Le modèle Maple Way 3 propose une approche moderne et fonctionnelle de la maison familiale. Il offre aux familles confort, luminosité et polyvalence au quotidien. Ce plain-pied de style Farmhouse s’appuie sur une organisation réfléchie des espaces et accompagne naturellement l’évolution des besoins actuels et futurs.
Farmhouse #3287-V2 : une superficie généreuse et bien exploitée
Le plan Maple Way 3 (#3287-V2) propose un total d’environ 3 170 pi² aménagés. Cette superficie se répartit entre le rez-de-chaussée et un sous-sol entièrement aménagé. Dès l’entrée, les plafonds de 9 pieds renforcent la sensation d’espace et de confort. De plus, la cuisine et la salle de séjour bénéficient d’un plafond cathédrale impressionnant de 16 pieds 2 pouces. Ainsi, la luminosité naturelle devient un élément central de l’expérience intérieure.

Une entrée fonctionnelle de style farmhouse et des pièces polyvalentes
D’abord, l’entrée s’ouvre sur un vestibule de type walk-in, pratique et bien organisé. Un banc intégré permet de déposer sacs, bottes ou effets personnels en toute simplicité. À proximité immédiate, un bureau à domicile offre une flexibilité remarquable. Grâce à une garde-robe intégrée, cette pièce peut devenir chambre, pouponnière ou salle de jeux. Ensuite, une chambre secondaire et une salle de douche complètent harmonieusement ce secteur. Cet aménagement convient parfaitement aux enfants, aux invités ou au télétravail.

Une suite principale intime et bien pensée
La suite principale du modèle Maple Way 3 privilégie l’intimité et le confort. Elle comprend une garde-robe walk-in spacieuse et une salle de bain privée complète de style farmhouse. Cette salle de bain offre un bain, une douche indépendante et deux lavabos. De plus, la chambre principale bénéficie d’un accès direct à la terrasse arrière. Ainsi, le quotidien s’y vit avec calme et fluidité.

Des espaces communs lumineux et conviviaux
À l’arrière du rez-de-chaussée, les espaces de vie partagés s’organisent autour du quotidien familial. D’abord, la cuisine se démarque par son grand îlot central et son garde-manger, deux caractéristiques très prisées des familles. Ensuite, elle s’ouvre naturellement sur la salle à manger et la salle de séjour, ce qui facilite les déplacements et les échanges. Par ailleurs, le foyer du salon reste bien en vue depuis la cuisine et contribue à instaurer une ambiance chaleureuse. En hiver, ce foyer devient un véritable lieu de rassemblement. Enfin, la fenestration abondante inonde ces espaces d’une belle lumière naturelle.

Maple Way 3 et sa terrasse adaptable à vos besoins
Tout d’abord, une terrasse arrière non couverte est prévue dans la conception du plan. Cependant, celle-ci n’est pas incluse dans l’estimation de coût de construction. Par ailleurs, il est également possible d’ajouter une terrasse couverte selon vos préférences. De plus, un garage peut être intégré facilement au plan existant. Enfin, ces ajustements peuvent être réalisés par l’un des 31 bureaux Dessins Drummond.
Découvrez nos plans de garage détachés pouvant s’harmoniser avec ce modèle, ou votre maison existante!

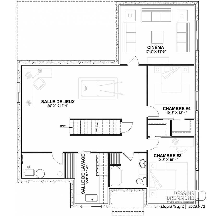
Un sous-sol familial aux multiples possibilités
Le sous-sol aménagé du Maple Way 3 (farmhouse moderne champêtre) a été pensé pour la vie familiale. Il comprend deux chambres supplémentaires et une salle de bain complète. On y retrouve également une salle de jeux ou une grande salle familiale. Un cinéma maison, la salle de lavage et la pièce mécanique complètent l’espace. Ainsi, chaque membre de la famille y trouve sa place.

💡 Note importante
Si vous souhaitez recevoir le sous-sol aménagé tel que présenté, l’option doit être sélectionnée au panier.
Sans cette sélection, le sous-sol sera livré non fini, sans frais supplémentaires.
Maple Way 3 et ses versions
Tout d’abord, la collection de plans de maison Maple Way propose trois versions aux façades similaires, tout en offrant des aménagements intérieurs distincts. Ainsi, bien que le style architectural demeure le même, chaque version a été conçue afin de répondre à différents modes de vie et besoins familiaux. Par ailleurs, de nombreuses photos de maisons construites par nos clients sont également disponibles, offrant ainsi une belle source d’inspiration concrète. Enfin, prenez le temps de les découvrir et d’imaginer votre propre interprétation de la collection Maple Way.
Voir la collection MAPLE WAY et ses photos ici >
Pourquoi choisir Maple Way 3
En conclusion, Maple Way 3 se démarque par des espaces polyvalents et bien pensés. Il évolue avec les différentes étapes de la vie familiale tout en offrant un style Farmhouse lumineux et fonctionnel. Pensée pour durer, cette maison soutient votre quotidien aujourd’hui comme demain.
Découvrez la maison de rêve de Ludovic Bourgeois et sa famille, la MAPLE WAY 2 >
Vous aimez ce modèle mais souhaitez y apporter des modifications? Prenez rendez-vous dans l’un de nos 31 bureaux Dessins Drummond!






