Un design nordique simple, chaleureux et très fonctionnel
Le plan de maison scandinave Nordic Haven (#3978) séduit par ses lignes épurées et son esthétique douce. Le design s’inspire des tendances nordiques appréciées au Québec. La maison combine simplicité, fonctionnalité et chaleur visuelle.
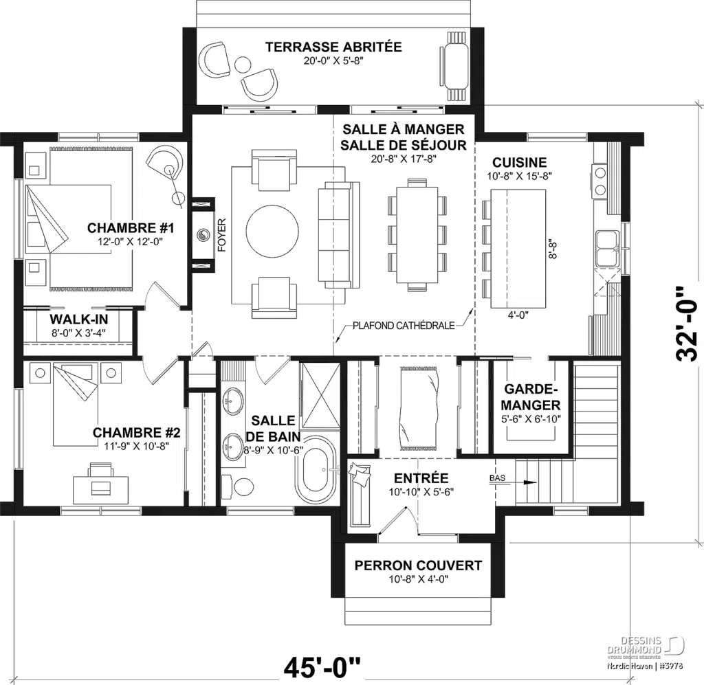
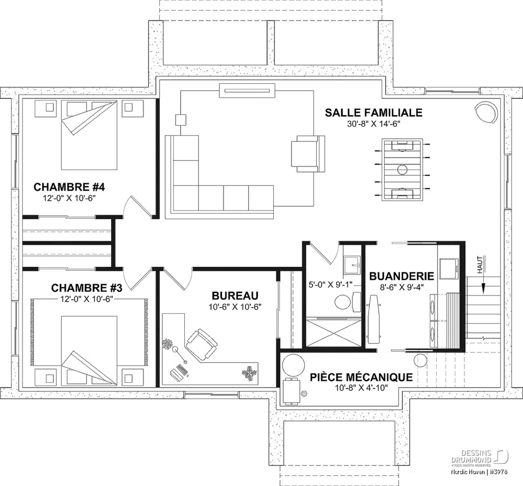
Le rez-de-chaussée offre 1329 pi² bien organisés. Le sous-sol propose la même superficie. Cette configuration assure une utilisation efficace de l’espace. Le choix des matériaux et des couleurs crée un raffinement accessible. La maison conserve aussi une ambiance accueillante, idéale en résidence principale ou en chalet.

Le bureau Dessins Drummond de Sherbrooke, concepteur du plan Nordic Haven (#3978)
Basé en Estrie, le bureau Dessins Drummond de Sherbrooke est le concepteur du plan Nordic Haven (#3978) et se distingue par son approche réfléchie, adaptée aux réalités climatiques et aux modes de vie d’aujourd’hui. Soutenue par un réseau de 30 bureaux Dessins Drummond répartis à travers le Québec, Ontario et Nouveau-Brunswick, son équipe combine expertise locale et savoir-faire collectif afin de livrer des plans cohérents, durables et bien adaptés aux besoins des clients comme des entrepreneurs. Cette collaboration permet d’offrir un accompagnement personnalisé, tout en assurant une grande rigueur technique pour les projets de maisons, de chalets et de rénovations.
Aire ouverte lumineuse et plafonds cathédraux impressionnants
Le rez-de-chaussée du plan de maison moderne scandinave Nordic Heaven présente une aire ouverte pensée pour la vie moderne. Elle convient aux familles et aux soirées entre amis. À l’arrière, la grande fenestration apporte une lumière naturelle abondante. Les deux portes-patio doubles éclairent la cuisine, la salle à manger et le salon.
Les plafonds cathédraux dans l’entrée, la cuisine et la salle de séjour élargissent la pièce. Ils créent un effet visuel spectaculaire et très recherché.

Plan de maison scandinave avec cuisine conviviale et foyer central chaleureux
L’entrée avant est dégagée et très pratique. Elle inclut deux grandes garde-robes et un banc intégré. La cuisine se place au centre du plan. Son grand îlot facilite la préparation des repas et les échanges. Le garde-manger offre un rangement très apprécié au quotidien.
La salle à dîner s’ouvre sur le salon. Le foyer central crée une ambiance chaleureuse et visible de toutes les aires communes.
Voici d’autres articles de modèles de maison scandinave pouvant vous intéressés >>
Terrasse couverte et chambres confortables
À l’arrière, la terrasse couverte de 20′ x 5’8″ prolonge les espaces de vie. Elle permet de profiter du plein air en toute saison.
Le rez-de-chaussée de ce modèle de maison scandinave propose deux chambres confortables. La principale et la secondaire partagent une salle de bain complète avec bain et douche séparés, plus deux lavabos.

Sous-sol flexible selon vos besoins
Le sous-sol standard arrive non fini. Il offre une flexibilité totale pour un futur aménagement.
L’option de *sous-sol aménagé ($) ajoute deux chambres, un bureau (ou chambre #5), une salle familiale, une salle de lavage, une salle de douche et un espace mécanique. *Pour recevoir la version aménagée du sous-sol, choisissez l’option « Sélectionner votre fondation » lors de l’achat. Sans cette option, le sous-sol non fini est inclus sans frais.
Découvrez notre collection de modèles de chalet et plans de maison scandinave sur notre site!
Obtenir une soumission gratuite pour modifier un des plans Dessins Drummond, par ici!



